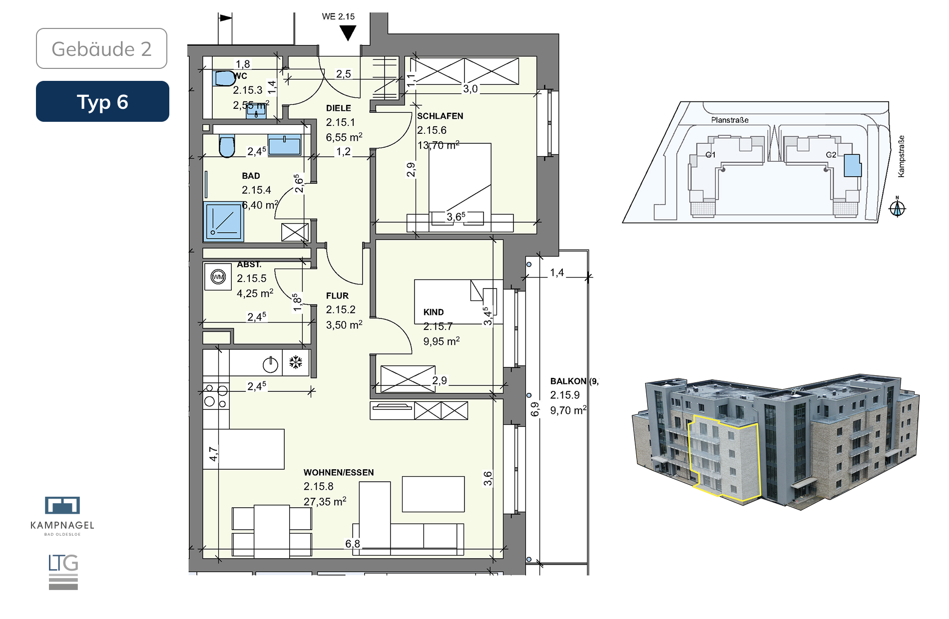
Wohnungstyp 6
Perfekt für Paare und Familien: die 3-Raumwohnung im 2 Obergeschoss des Hauses bietet einen Balkon, ein Wohnzimmer mit offener Küche, sowie zwei Schlafzimmer.
Herzstück ist der helle Wohn-/Essbereich mit offener Küche, der direkt auf den Balkon bzw. die Terrasse führt – ideal, um den Wohnraum an warmen Tagen nach draußen zu erweitern.
Neben dem großzügigen Wohnbereich stehen Ihnen ein gut geschnittenes Schlafzimmer und ein weiteres Zimmer als Kinder-, Gäste- oder Arbeitszimmer zur Verfügung. Ein modernes Bad sowie ein separates Gäste-WC sorgen für zusätzlichen Komfort im Alltag.
Die Wohnungen in Gebäude 1 sind bereits bezugsfertig und mit einer hochwertigen Einbauküche sowie Vinyl-Designboden und modernen Fliesen ausgestattet. In Gebäude 2 besteht – abhängig vom Baufortschritt – noch die Möglichkeit, einzelne Ausstattungsdetails mitzugestalten. Damit eignet sich dieser Wohnungstyp sowohl für Eigennutzer als auch für Kapitalanleger, die Wert auf zukunftsfähige Ausstattung und eine attraktive Lage legen.
Fakten
Grundriss im Gebäude 2

