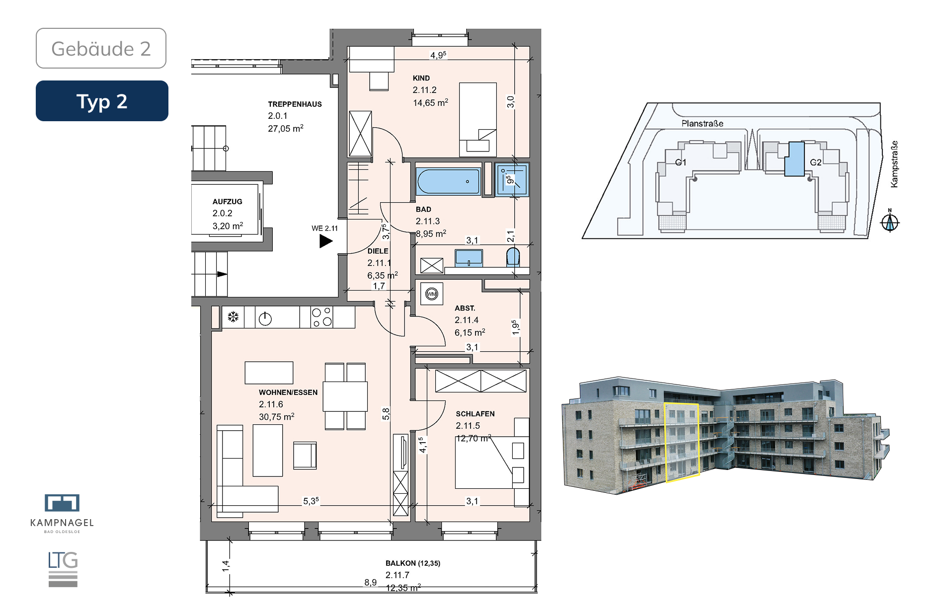
Wohnungstyp 2
Perfekt für Familien: die 3-Raumwohnung überzeugt durch viel Platz, sowie die großzügige Terrasse mit Blick in den Hof.
Der Wohnungstyp 2 bietet 3 Zimmer und kombiniert einen durchdachten Grundriss mit hohem Wohnkomfort. Im Mittelpunkt steht der offene Wohn-/Essbereich mit integrierter Küche. Die große Fensterfläche zum Balkon bzw. zur Terrasse sorgt für viel Tageslicht und erweitert den Wohnraum in den warmen Monaten nach draußen – ideal für entspannte Abende oder das Frühstück an der frischen Luft.
Neben dem Wohnbereich stehen ein geräumiges Schlafzimmer sowie ein weiteres Zimmer zur Verfügung, das sich flexibel als Kinder-, Arbeits- oder Gästezimmer nutzen lässt. Ein Highlight ist das komfortable Bad mit Wanne und Dusche, ergänzt durch ein separates Gäste-WC – perfekt für Paare, kleine Familien. Ein praktischer Abstellbereich unterstützt die Alltagstauglichkeit dieses Wohnungstyps.
In Gebäude 1 sind die Wohnungen dieses Typs bereits bezugsfertig und mit einer Einbauküche, Vinyl-Designboden und modernen Fliesen ausgestattet. In Gebäude 2 besteht – abhängig vom Baufortschritt – die Möglichkeit, einzelne Ausstattungsdetails noch mitzugestalten. Damit ist Wohnungstyp 2 eine attraktive Wahl für Eigennutzer und Kapitalanleger, die Wert auf Komfort, Flexibilität und eine gute Lage legen.
Fakten
Grundriss im Gebäude 2
