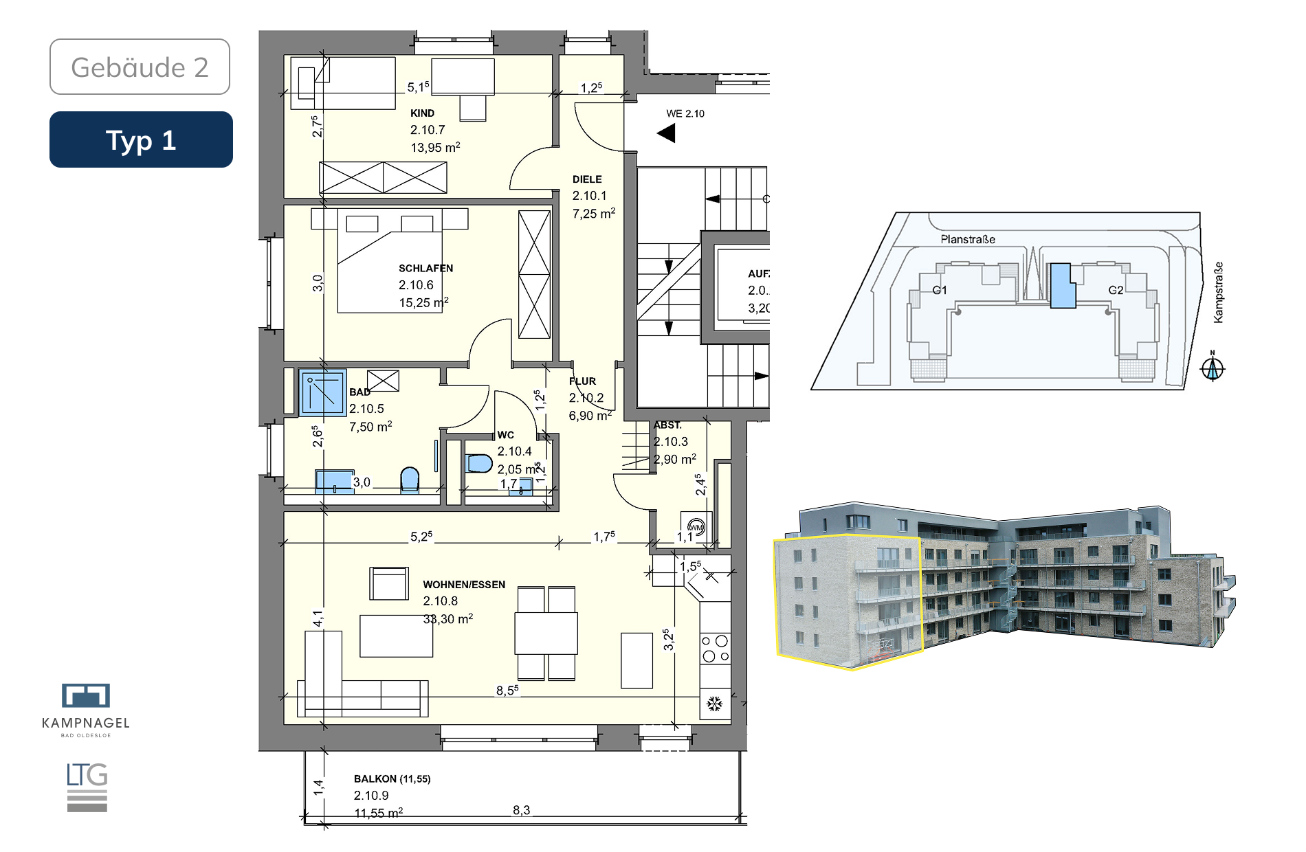
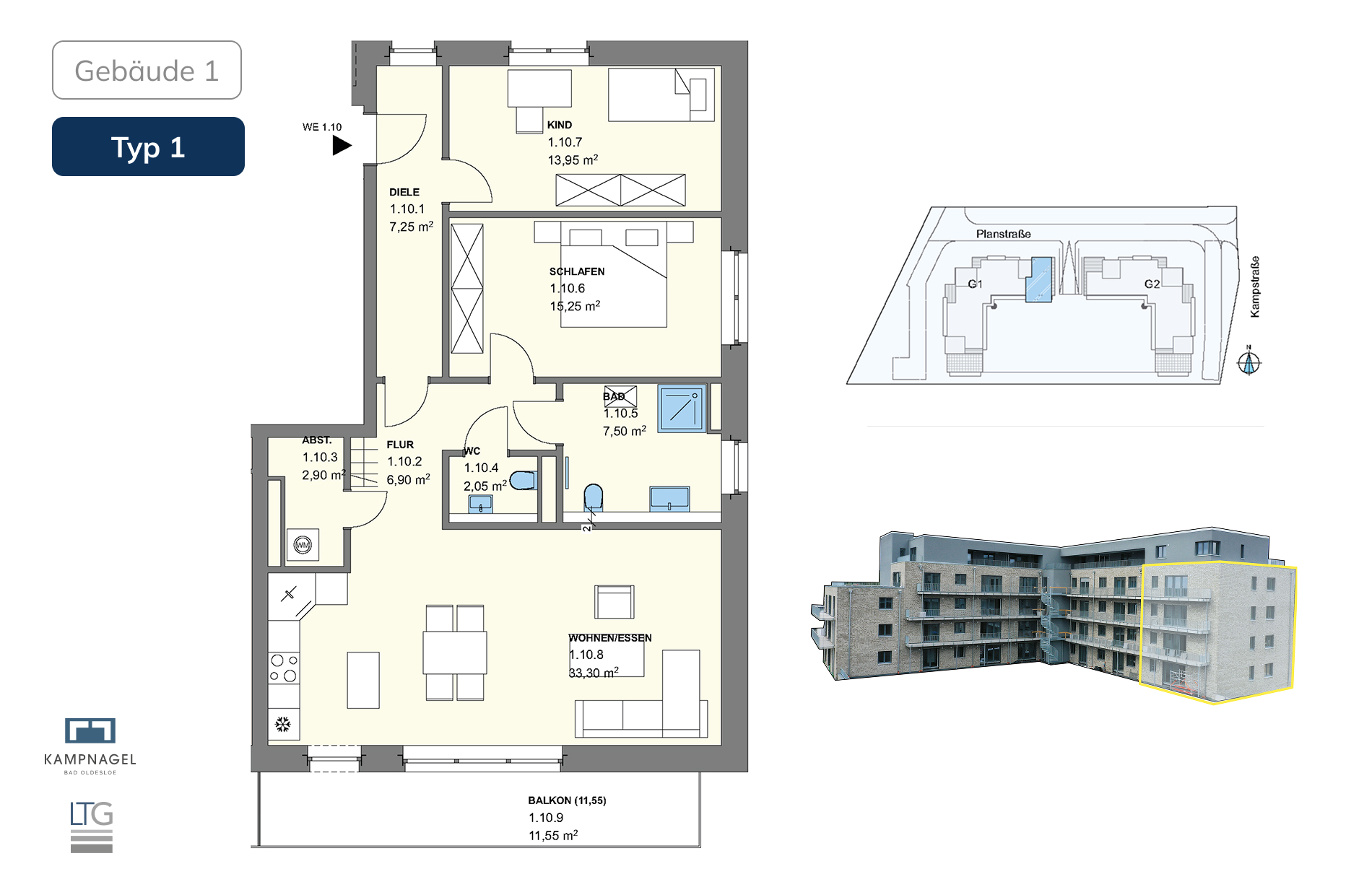
Wohnungstyp 1
Perfekt für Familien: die 3-Raumwohnung überzeugt durch viel Platz, sowie die großzügige Terrasse oder Balkon mit Blick ins Grüne.
Der Wohnungstyp 1 bietet großzügiges Wohnen auf ca. 95 m² (im EG – 99 m²) und richtet sich an Paare oder kleine Familien, die viel Raum und einen komfortablen Grundriss schätzen. Herzstück der Wohnung ist der weitläufige Wohn-/Essbereich mit offener Küche. Die große Fensterfront sorgt für viel Tageslicht und führt direkt auf den angrenzenden Balkon bzw. die Terrasse – ideal für gemütliche Abende im Freien oder das Frühstück an der frischen Luft.
Neben dem offenen Wohnbereich stehen ein geräumiges Schlafzimmer und ein weiteres Zimmer als Kinder-, Arbeits- oder Gästezimmer zur Verfügung. Ein modernes Bad sowie ein separates Gäste-WC bieten Alltagskomfort. Ein praktischer Abstellbereich ergänzt das Raumangebot und sorgt für zusätzliche Staufläche.
In Gebäude 1 sind die Wohnungen dieses Typs bereits bezugsfertig und mit einer hochwertigen Einbauküche, Vinyl-Designboden und modernen Fliesen ausgestattet. In Gebäude 2 besteht – abhängig vom Baufortschritt – die Möglichkeit, einzelne Ausstattungsdetails noch mitzugestalten. Damit ist Wohnungstyp 1 eine attraktive Option für Eigennutzer und Kapitalanleger gleichermaßen.
Fakten
Grundriss im Gebäude 2

