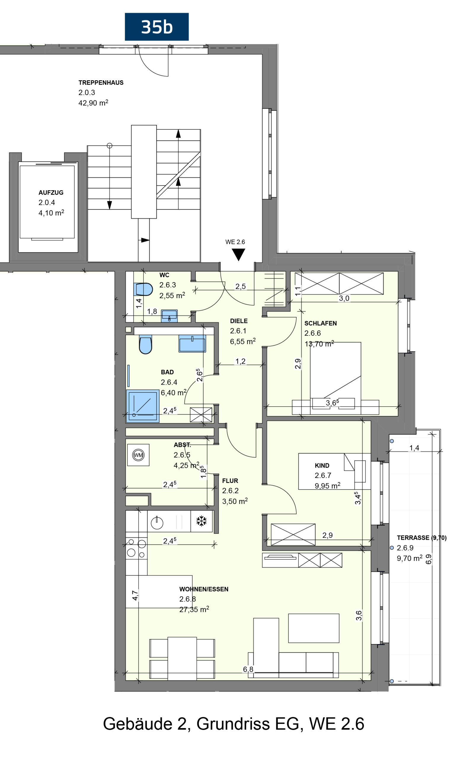
Wohnung G2 – 2.6 – EG
Perfekt für Familien: die 3-Raumwohnung im EG des Hauses überzeugt mit seinen 80 qm und der guten Aufteilung.
Fakten
Balkone und Terrassen werden zu 50% in der Wohnfläche berücksichtigt. Dargestellte Möblierung stellt einen unverbindlichen Gestaltungsvorschlag dar und ist im Lieferumfang nicht enthalten.


